Freelance Residential Design & Drafting Using Vectorworks “Architect / Renderworks” BIM Software
Please have a look at some of my designs and construction doc details
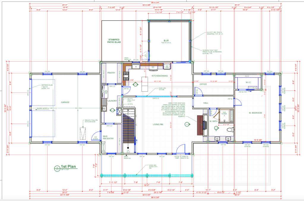
I have 30 plus years of experience residential building and remodeling performing all trades (less plumbing/electrical) from the foundation up. I started designing projects and creating construction documents with Vectorworks ‘Architect’ in 1999 as a value add and to make the permit process easier.
Since 2021, I have been assisting an architect on a ‘by project’ basis with design work and preparing construction documents. I offer my experience and services to architects and draftsmen, homeowners, developers, builders and building materials providers. My experience in residential build and remodeling from concept and design to permit acquisition proves to be helpful; as does material sourcing and familiarity with area subcontractors. My background enables me to help any client realize their dream of a new or remodeled home. The design of a home or remodel is just the beginning. The key to a smooth building project is properly detailed construction documents that make permitting sure and life easier for the builder. I am not an architect or an engineer, but have access to both.
I will continue to add examples of my designs and details to this website over time.
My goal is to provide the best services I can and to do so economically, while helping folks see their vision fulfilled.


A classic NE Colonial–this version has a finished walkout basement.





I design trusses showing the parameters and criteria necessary for the home design. It is left to the truss manufacturer and engineer to build them as required by code to satisfy various load and tension factors present. This is common practice.






















